Introduction:
LXC ultrasonic water meter is an intelligent measuring instrument composed of temperature sensor, flow sensor and calculator. The calculator provides accurate measurement of flow by processing temperature differences collected by sensors and the time difference between sound waves moving through the fluid, and provides recording and data transmission for a variety of applications in the pipeline.
Technical features:
1. There will be a fault alarm when the flow is abnormal;
2. Wide range ratio (R250/R400), high accuracy grade, good stability, can be used for water leakage detection;
3. Positive and negative bidirectional metering, installation angle is not limited.
 
Item  | Unit  | Parameter  | ||||||||
Father-in-law said caliber  | mm  | 50  | 65  | 80  | 100  | 125  | 150  | 200  | 250  | 300  | 
Overload flow Q4  | m³/h  | 31.25  | 50  | 78.75  | 125  | 200  | 312.5  | 500  | 787.5  | 1250  | 
Common traffic Q3  | m³/h  | 25  | 40  | 63  | 100  | 160  | 250  | 400  | 630  | 1000  | 
Range than Q3/Q1  | R=R250/R400(Standard is R250, if you need other range ratio, please ask when ordering.)  | |||||||||
Boundary flow Q2  | m³/h  | 0.8  | 1.28  | 2  | 3.2  | 5.12  | 8  | 12.8  | 20.16  | 32  | 
Minimum flow Q1  | m³/h  | 0.5  | 0.8  | 1.26  | 2  | 3.2  | 5  | 8  | 12.6  | 20  | 
Degree of accuracy  | Class B  | |||||||||
Temperature rating  | T30/T50 (Standard is T30, if you need other temperature rating, please ask when ordering.)  | |||||||||
Nominal pressure  | 1.6MPa  | |||||||||
Pressure loss class  | ≤0.063MPa  | |||||||||
Flow profile sensitivity level  | U10/D5  | |||||||||
Climate and mechanical environment rating  | Class B  | |||||||||
Static power  | ≤40Ua  | |||||||||
Data transmission mode  | M-Bus/RS-485/GPRS/LoRa  | |||||||||
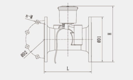
Boundary dimension:
 
 

 
 客服1